网站首页
地暖系统
什么是地暖
电地暖
地暖温控器
小沃智能壁挂炉
成都地暖
空气能地暖
德国艾诺基
毛细地暖
德国博世
德国菲斯曼
德国威能
日本能率
中央新风
中央除湿新风
百朗系列
霍尼韦尔系列
中央净水
霍尼韦尔系列
蓝漂儿系列
中央空调
五恒系统空调
三菱系列
美的系列
海尔系列
格力系列
松下系列
大金系列
暖气片
成都暖气片
ARODD阿洛德暖气片
瑞特格
波码系列
普特斯系列
泰克尼克系列
产品中心
地暖系统
中央新风
中央净水
中央空调
暖气片
智能家居
经典案例
资讯中心
德国技术
公司简介
经典案例
荣誉资质
实时热点
春意讲堂
行业新闻
公司新闻
联系我们
凯信家居装饰城
公司库房
成都体验中心
郫都区专卖店
资料下载
产品中心
您的当前位置:
网站首页
> 中央新风
智能家居
暖气片
中央空调
中央净水
中央新风
地暖系统
热线电话:
028-61832187
24小时热线:
18980604807
荣誉资质—上榜品牌
荣誉资质--营业执照
荣誉资质—授权证书
中国环境标志产品认证证书
鲁尔授权
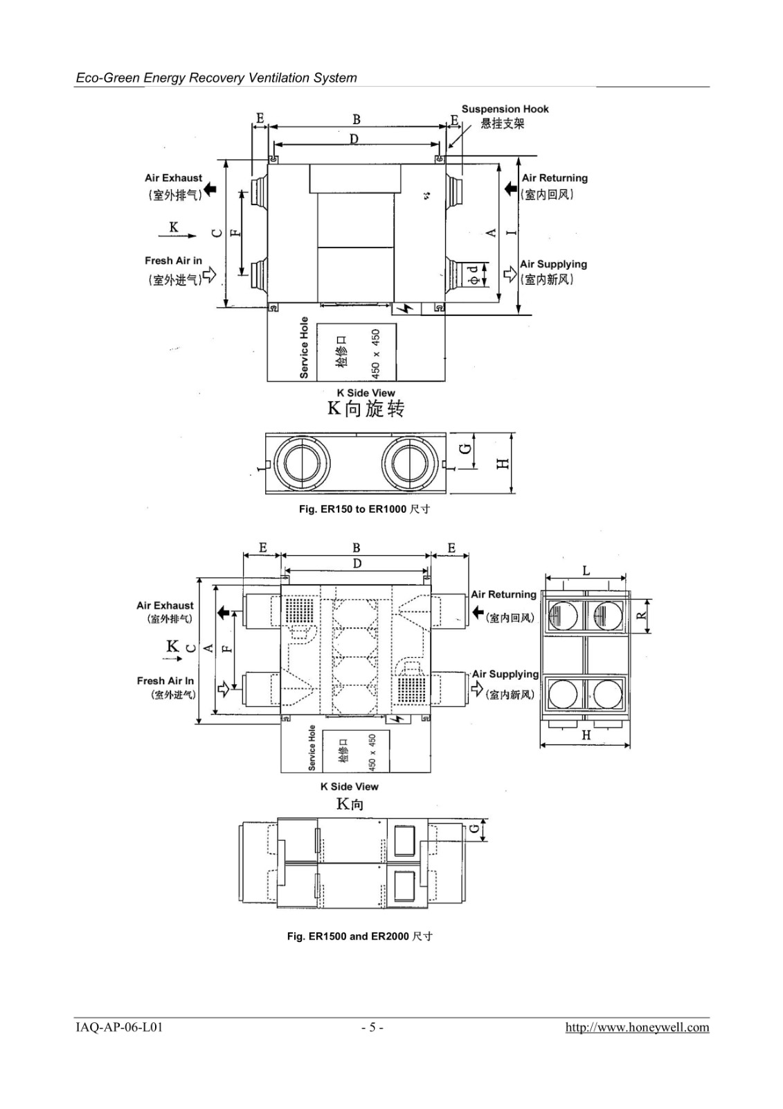
美国霍尼韦尔中央新风
发布者:成都春意暖通设备有限公司 作者: 发布时间:2019-10-03 浏览量:3579次
下一条:
美国百朗中央新风系统
返回列表
网站首页
|
地暖
|
中央新风
|
中央净水
|
中央空调
|
暖气片
|
智能家居
|
资讯中心
|
联系我们
装修计算器
累计有1500业主获取装修预算
分类
*
分类
地暖系统
中央新风
中央净水
中央空调
暖气片
智能家居
面积
*
户型
*
姓名
*
电话
*
×
咨询热线
028-61832187
客服QQ
设计报价
18980604807